-
Załączniki bezpieczeństwa
Załczniki do produktuZałączniki dotyczące bezpieczeństwa produktu zawierają informacje o opakowaniu produktu i mogą dostarczać kluczowych informacji dotyczących bezpieczeństwa konkretnego produktu
-
Informacje o producencie
Informacje o producencieInformacje dotyczące produktu obejmują adres i powiązane dane producenta produktu.AUSTROFLAMM
-
Osoba odpowiedzialna w UE
Osoba odpowiedzialna w UEPodmiot gospodarczy z siedzibą w UE zapewniający zgodność produktu z wymaganymi przepisami.
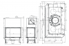
AUSTROFLAMM 89x49x57S /prawy
| Moc | 12 kW |
| Powierzchnia ogrzewania | 120 m² |
| Sprawność | 80 % |
| Średnica wylotu spalin | Ø 180 mm |
| Temperatura spalin | 307°C |
| Waga | 222 kg |
Insert Control - Automatyczna regulacja spalania z zestawem montażowym
Jeszcze większy komfort dzięki nowej kontroli spalania. Nie chcesz zajmować się ustawieniem powietrza?
Pozwól automatycznemu sterowaniu wkładem palnika przejąć regulację powietrza. Jedyne sterowanie z krzywymi spalania specjalnie dla Austroflamm. A jeśli masz na to ochotę, możesz monitorować wszystko ze swojego smartfona (iOS lub Android).
10 powodów dla których warto wybrać wkład kominkowy Austroflamm 89x49x57 S /prawy:
1.KERAMOTT - wyjątkowy materiał, który charakteryzują nadzwyczajne możliwości izolacyjne i kumulacyjne. Zawsze czysty i jasny.
2.ELEMENTY DO KONTROLI I REGULACJI - elegancko zaprojektowane rączki drzwi oraz wodzik sterowania powietrzem pozwalają na bezpieczną obsługę wkładu Austroflamm 89x49x57 S.
3.CZOPUCH WKŁADU - wykonany z trwałej i wytrzymałej stali żeliwnej. Zastosowanie obrotowego czopucha o 360 stopni zapewnia łatwe podłączenie wkładu Austroflamm 89x49x57 S do przewodu kominowego.
4.REGULOWANE NÓŻKI - zaprojektowane z myślą o prostej, szybkiej i bezpiecznej regulacji.
5.SZYBA DRZWIOWA - klejona, odporna na działanie wysokiej temperatury.
6.KANAŁY POWIETRZNE - odgrywają decydującą rolę w procesie spalania. Umożliwiają ograniczenie emisji gazów i niezawodne funkcjonowanie "systemu czystej szyby". Pierwotne i wtórne powietrze kontrolowane są tylko za pomocą jednego systemu sterowania - co sprawia, że przypadkowe i niewłaściwe użytkowanie jest niemożliwe.
7.SYSTEMY AKUMULACJI CIEPŁA - każdy wkład Austroflamm 89x49x57 S można w prosty sposób wyposażyć opcjonalnie w opatentowane systemy magazynowania ciepła, np. Heat Memory System lub ASM Ring. Zastosowanie systemów kumulacji ciepła Austroflamm pozwala zmniejszyć zużycie drewna.
8.PODŁĄCZENIE POWIETRZA Z ZEWNĄTRZ - każdy wkład Austroflamm 89x49x57 S wyposażony jest w przewody umożliwiające pobieranie powietrza z zewnątrz.
9.MOCOWANIA I SYSTEMY DRZWIOWE - w wersji podstawowej zawiasy drzwi zamocowane są z lewej strony wkładu, jednak dzięki zastosowanemu rozwiązaniu, można w prosty sposób przenieś zawiasy na prawą stronę.
10.SYSTEM DRZWI PODNOSZONYCH - szyny prowadnicy na łożysku kulkowym i wielokrążki dla maksymalnej wygody w użyciu.
DANE TECHNICZNE
-
Wkład kominkowy:
Wkład powietrzny
-
Konstrukcja:
Stalowa
-
Kształt szyby:
Szyba narożna prawa
-
Otwieranie drzwi:
Do góry (gilotyna)
-
Moc nominalna (kW):
12 kW
-
Szerokość fasady (cm):
70 - 80 cm
-
Sprawność cieplna (%):
80 %
-
Spełnia kryteria EKOPROJEKTU:
Tak
-
Przeznaczony do rekuperacji:
Tak
-
Rodzaj paliwa:
Drewno
-
Dolot powietrza:
Tak
-
Popielnik:
Tak
-
Średnica wylotu spalin (mm):
Fi 180
-
Szyba z DECOREM:
Tak
