-
Załączniki bezpieczeństwa
Załczniki do produktuZałączniki dotyczące bezpieczeństwa produktu zawierają informacje o opakowaniu produktu i mogą dostarczać kluczowych informacji dotyczących bezpieczeństwa konkretnego produktu
-
Informacje o producencie
Informacje o producencieInformacje dotyczące produktu obejmują adres i powiązane dane producenta produktu.EDILKAMIN
-
Osoba odpowiedzialna w UE
Osoba odpowiedzialna w UEPodmiot gospodarczy z siedzibą w UE zapewniający zgodność produktu z wymaganymi przepisami.
Piecyk na pelet BLADE H 15 EVO - stal i wstawka ze szkła
Piecyki wytwarzają gorącą wodę, która zasila grzejniki i panele ogrzewania podłogowego w całym domu. Dzięki specjalnym zestawom mogą one produkować ciepłą wodę użytkową.
- obudowa stalowa, środkowa przednia wkładka z czarnego szkła
- palenisko ze stali
- z wbudowanym naczyniem wzbiorczym, pompą oraz zaworem bezpieczeństwa
- ceramiczna świeca żarowa
- programator czasowy/tygodniowy
- zintegrowane Wi-Fi
- kontrolka rezerwy pelletu
- górny wylot spalin, gwint wew. (opcjonalny tylny wylot spalin, gwint zew.)
- funkcje konfigurowane z poziomu wyświetlacza z listwą zaciskową dla zewnętrznych sond
- ciepłe powietrze od frontu
- system Leonardo (automatycznie zarządza spalaniem pelletu. W sposób ciągły wykrywa główne parametry spalania i odpowiednio interweniuje, aby zapewnić optymalne działanie i oszczędność paliwa)
DANE TECHNICZNE:
- ogólna moc użytkowa - 5-14,9 kW
- moc płaszcza wodnego - 9,4 kW
- ogólna sprawność - 90%
- zużycie paliwa - min. 1,1 kg/h / max. 3,4 kg/h
- pojemność zasobnika - 23 kg
- autonomia - min. 7h / max. 21h
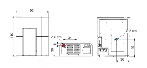
- ujście spalin - Ø 8cm
- doprowadzenia powietrza - Ø 5cm
- ciężar - 240 kg
- ogrzewana kubatura - 390 m³
DANE TECHNICZNE
-
Piec wolnostojący:
Piec na pellet z płaszczem wodnym
-
Konstrukcja:
Stalowa
-
Kształt szyby:
Szyba prosta
-
Otwieranie drzwi:
Na bok
-
Moc nominalna (kW):
15 kW
-
Sprawność cieplna (%):
90%
-
Spełnia kryteria EKOPROJEKTU:
Tak
-
Przeznaczony do rekuperacji:
Tak
-
Rodzaj paliwa:
Pellet
-
Dolot powietrza:
Tak
-
Popielnik:
Tak
-
Średnica wylotu spalin (mm):
Fi 80
-
Szyba z DECOREM:
Tak
